Thi Công Nhà Anh Văn Anh, Chị Phương QL1K, Dĩ An
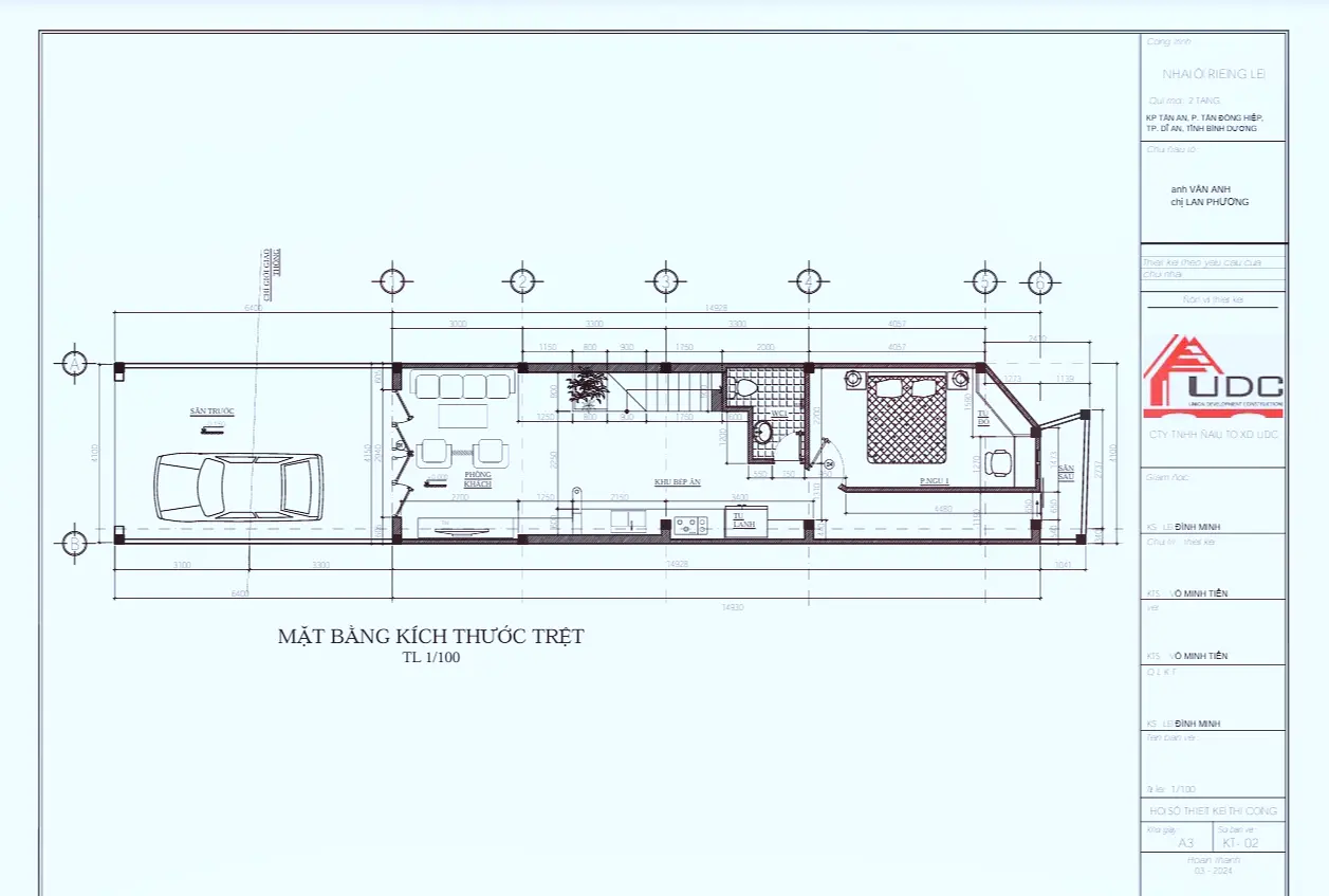
Công trình 1 trệt 2 lầu của vợ chồng anh chị Văn Anh, chị Phương tại Dĩ An Bình Dương.
Khởi công ngày 20/3/2024.
Với thiết kế 1 trệt 2 lầu theo phong cách hiện đại.
Cảm ơn vợ chồng anh chị, đã đồng hành cùng xây dựng UDC.
UDC luôn sẵn sàng giải đáp mọi thắc mắc và tư vấn giải pháp tốt nhất cho quý khách hàng.



















































