Nhà Chị Phượng TP Thủ Đức

Tại TP Thủ Đức, ngày 18/3/2024, Chị Phượng đã khởi công xây dựng một ngôi nhà hiện đại. Công ty xây dựng UDC hân hạnh được đồng hành cùng Chị trong quá trình này. 🏠👷‍♀️👷‍♂️

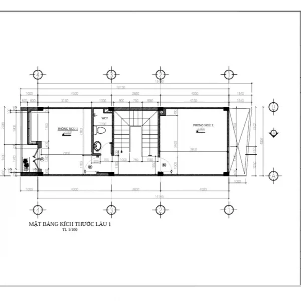
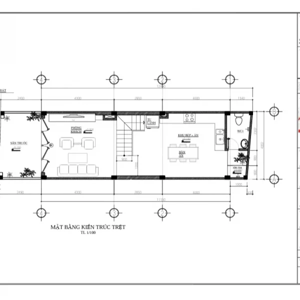
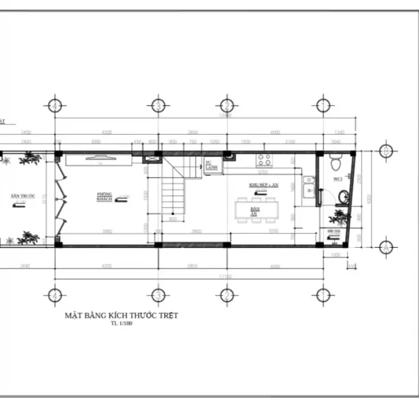
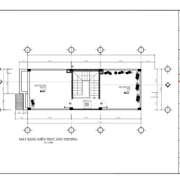
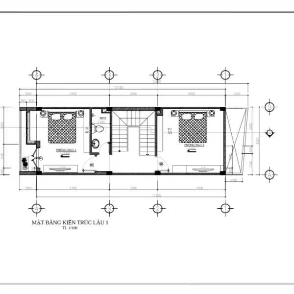
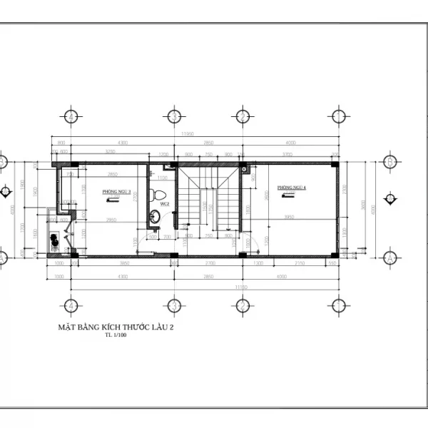
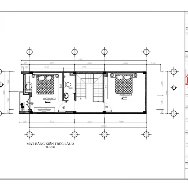
Trong quá trình xây dựng, Chị Phượng đã chọn một kiến trúc đẹp mắt và tiện nghi. Ngôi nhà có kiến trúc hiện đại với các tiện ích như hệ thống điều hòa nhiệt độ, cửa sổ lớn để tận hưởng ánh sáng tự nhiên, và không gian thoáng đãng.

Những ngày đầu khởi công, các công nhân xây dựng đã làm việc chăm chỉ để đưa dự án này thành hiện thực. Họ đã đặt nền móng, xây tường, và lắp đặt hệ thống điện nước. Mọi người đều hào hứng và đầy nhiệt huyết với công việc của mình.

Chị Phượng cùng gia đình đã tham gia vào việc xây dựng, từ việc chọn màu sơn cho tường đến việc chọn nội thất. Mọi người cùng nhau tạo nên không gian ấm cúng và thân thiện.

Dự án này đánh dấu một bước ngoặt quan trọng trong cuộc đời Chị Phượng và gia đình. Họ mong muốn rằng ngôi nhà mới sẽ trở thành nơi ấm áp, hạnh phúc và đón chào nhiều kỷ niệm đáng nhớ. 🏡❤️

UDC luôn sẵn sàng giải đáp mọi thắc mắc và tư vấn giải pháp tốt nhất cho quý khách hàng.

LÊ ĐÌNH MINH
Manager

0987 285 667

Hoặc

Đăng ký tư vấn Dự toán chi phí